|
|
|
||||||||||||||||||||
繋がりを紡ぐ |
||||||||||||||||||||||
|
||||||||||||||||||||||
|
||||||||||||||||||||||
|
||||||||||||||||||||||
|
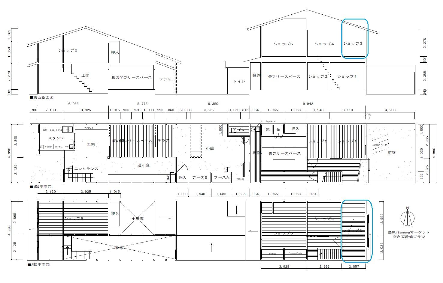
2014年「空き家活用×まちづくり」モデルプロジェクトに採択された島原口近くにある「itonowa」。京都にお住いで今このページを読んでくれている方なら既にご存知の方は多いかと思いますが、空き区画が出たとの事なので改めてご紹介。 まず始めに、建物に面した下松屋町通は通称「一貫町通」と呼ばれ、昭和後期頃までは、着物や生地等の「糸」関連のお店が多く立ち並ぶ地域だったこと、そして貸主さんの家業も呉服業だったということもあり「糸でつながる33mのマーケットitonowa」という名前の由来に繋がったそう。で、2015年10月に「島原に再び活気を」という熱意と共にアトリエ&ショップ、コーヒースタンド、レンタルスペースから成る交流型複合施設として稼働し始め、現在に至るまで商店街を絡めたアートイベントや夏祭りなど様々なイベントも行われてきました。そして今では地域振興の中心的存在になるのが、今回ご紹介のitonowa自体でもあり、そこに携わるメンバーということで、その一員である入居者を募集します! それでは簡単に建物の内容を。元々背を向けて建つ2軒の各庭が繋がり大きな中庭が出来ました。その中庭を挟んで正面側にコーヒースタンドやレンタルスペース、裏手側にアトリエなどの入居者エリアという構成になっていて、今回の募集はその裏手側の2階にある3号室。 建物の裏手に面した本区画は約5m×約2mの横に長いスタイル。ただ天井が抜いてある分の天高は確保できているので特別圧迫感は感じません。奥側にデスクをはめ込んで、手前側を作業スペースにするなど、内容によりますがハマれば配置しやすい間取だと思います。また東向きの出窓部分に腰掛けることもでき、型ガラス越しに午前中は自然光が差し込んできそうです。 利用可能な用途は基本的に事務所やアトリエですが、不特定多数の出入りがない事(たまの来客程度なら応相談)と、大きな音や匂いが出ない事が条件です。あと現入居者と業種が被らない様にしたいため、お問合せ時に希望内容の詳細を教えていただけると助かります。ちなみに今のところ着物専門店、ギャラリー等が入居されてます。 文化交流や地域活性に位置役を担いたいって方は是非お問合せ下さい。 (具体的な活動内容については内覧時に貸主との面談の上、ご相談下さい) |
![]() |
|
| 3号室|東向きの大きな出窓 |
|
| 3号室|横長の形状ですが、この様に天井高はしっかりあります |
|
| 3号室|カラカラと音を立てて開ける古建具 |
|
| 2階は計3区画。 |
|
|
| >>大きな地図で見る  |
| 賃料 | 3万6,300円(税込) | 専有面積 | 19.60㎡ |
| 敷金 | 1ヶ月 | 礼金 | 1ヶ月 |
| 償却 | なし | 共益費 | 2,000円(税込) |
| 所在地 | 京都市下京区突抜2丁目357 | ||
| 交通 |
JR山陰本線「梅小路京都西」駅 徒歩14分 京都市バス「島原口」停 徒歩2分 |
||
| 建物構造 | 木造 2階建て | 所在階 | 2階 |
| 築年 | 取引態様 | 媒介 | |
| 設備 | 電気/共用トイレ/エアコン/ | ||
| 備考 | ペット不可/定期借家契約(期間:2/再契約:相談)/募集戸数:1戸/築年不詳/毎月の電気代は子メーターがない為、入居者数で頭割り/水道代は共益費に込み/要火災保険契約 | ||
| 情報修正日時 | 情報更新予定日 | 2025年12月18日 | |
あなたにおすすめの物件


