|
|
|
||||||||||||||||||||
はじまる名店街 |
||||||||||||||||||||||
|
||||||||||||||||||||||
|
||||||||||||||||||||||
|
||||||||||||||||||||||
|
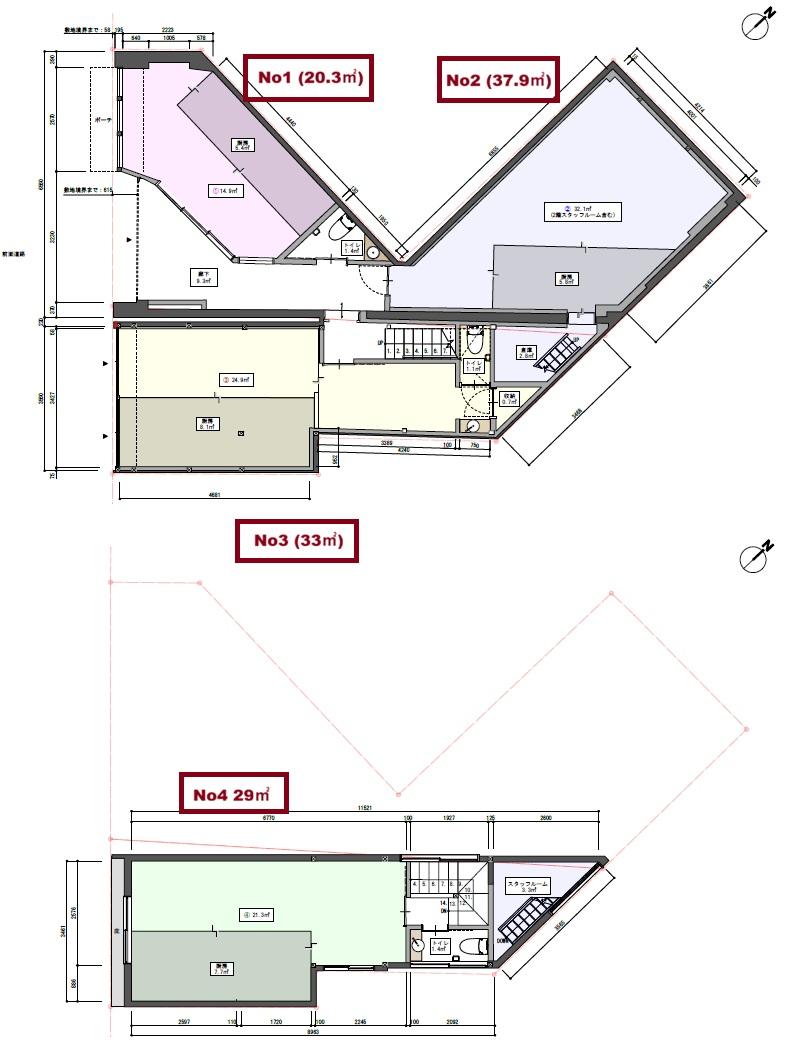
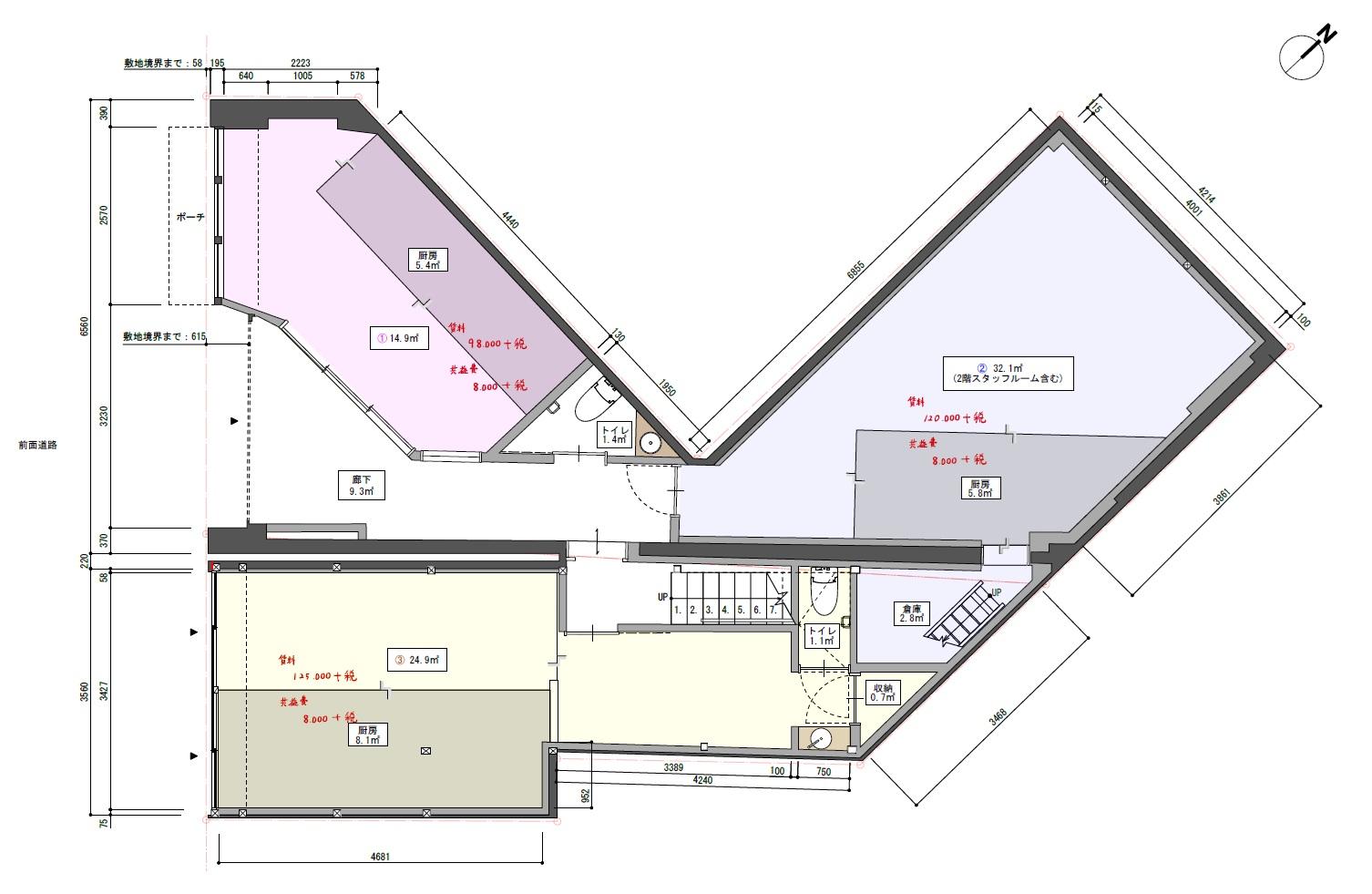
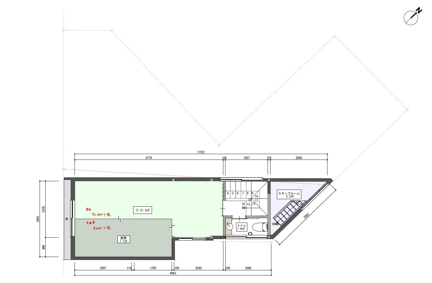
後院通にまもなく計4区画の「名店街」が出来上がります!今回はそのオープニングメンバーとなる「名店」の募集です。 現在、三条通から四条通にかけて、順次歩道の拡張工事が進んでいて、それに伴い飲食店も増えつつある後院通。実際に本物件の両サイドや向かいにも飲食店が盛業中で、近い将来には人通りも増え、今よりも賑わいをもたらしそうな注目のエリアではないでしょうか。 木造2階建とコンクリートブロック造の2棟をドッキングさせ長年瓦屋さんとして利用されてきた本物件を、1階3区画、2階1区画の計4区画からなる「名店街」としての再出発に向け、貸主さんによりA工事が行われていて、間もなく完了予定です。現時点で具体的に確定している訳ではないですが、ファサードや共用部の要所要所に昭和のラブホテルのテイストが組み込まれる予定とのことで、きっと楽しい集合体になるはず。 各区画ともコンパクトなので、テーブル席を並べられるような広さはなく、基本的にはカウンター席メインというイメージです。露出度でいくと通りに面したNo3→No1ですが、奥まったNo2や2階のNo4でも、この「名店街」を目指して来てくれる人が増えてくれれば、然程気にならないかも知れません。募集の業種としては飲食店限定で、貸主さんとしては集合体として盛り上がるように、各区画が単体でも集客できるようなナイスな「名店」が集まれば嬉しいです!とのこと。但し、隣地に唐揚げメインのお店が営業中なので、唐揚げ屋さんだけはNGです。 で、ここから大事なお話を。 募集方法は先着順ではなく、お問合せ状況を見て一定期間京都R不動産のHPにて内覧希望者を受け付けます。その後、申込み希望者が重複した場合は、その中から貸主さんによる判断。という流れになります。あと、内装工事は基本的に工務店でもある貸主さんとの請負契約になります。 「各区画の募集賃料」 No1(20.3㎡):賃料9.8万円(税別) No2(37.9㎡):賃料12万円(税別) No3(33㎡):賃料12.5万円(税別) No4(29㎡):賃料9.5万(税別) 各区間共通:共益費8,000円(税別)、水道代5,000円(税別) 我こそは是非!という方、お待ちしてます。 |
![]() |
|
| 区画No1|以前は瓦屋さんでしたが、過去にはこの区画で喫茶店が営業されていたそう |
|
| 区画No1|カウンター席のみになりそうですが、この天高は嬉しい。 |
|
| 区画No1|古いタイルはちゃんと残してあります |
|
| 区画No1|奥から後院通を見るとこう |
|
|
| >>大きな地図で見る  |
| 賃料 | 10万4,500~13万7,500円(税込) | 専有面積 | 20.30㎡~37.90㎡ |
| 敷金 | 2ヶ月 | 礼金 | 1ヶ月 |
| 償却 | なし | 共益費 | 8,800円(税込) |
| 所在地 | 京都市中京区壬生馬場町30-13、30-20 | ||
| 交通 |
阪急京都線「大宮」駅 徒歩7分 JR山陰本線「二条」駅 徒歩10分 |
||
| 建物構造 | 木造 瓦葺 2階建/コンクリートブロック造 平家建 2階建て | 所在階 | 1.2階 |
| 築年 | 取引態様 | 媒介 | |
| 設備 | 電気/都市ガス/上下水道/共用トイレ(1ヵ所) | ||
| 備考 | ペット不可/定期借家契約(期間:5年)/定額水道代:5,500円(税込)/募集戸数:4戸/保証会社加入要(初回:月額賃料総額の100%、毎年10,000円~)/再契約時に再契約料として新家賃1ヶ月分、事務手数料15,000円(税別)が必要/駐輪場無し/飲食店限定(夜営業は必須)/電気・ガスは専用メーターにて個別契約/1階・路面/飲食店可/要火災保険契約 | ||
| 情報修正日時 | 2026年3月30日 | 情報更新予定日 | 2026年4月14日 |
あなたにおすすめの物件


