|
|
|
||||||||||||||||||||
丸裸の立体空間~疏水沿い~ |
||||||||||||||||||||||
|
||||||||||||||||||||||
|
||||||||||||||||||||||
|
||||||||||||||||||||||
|
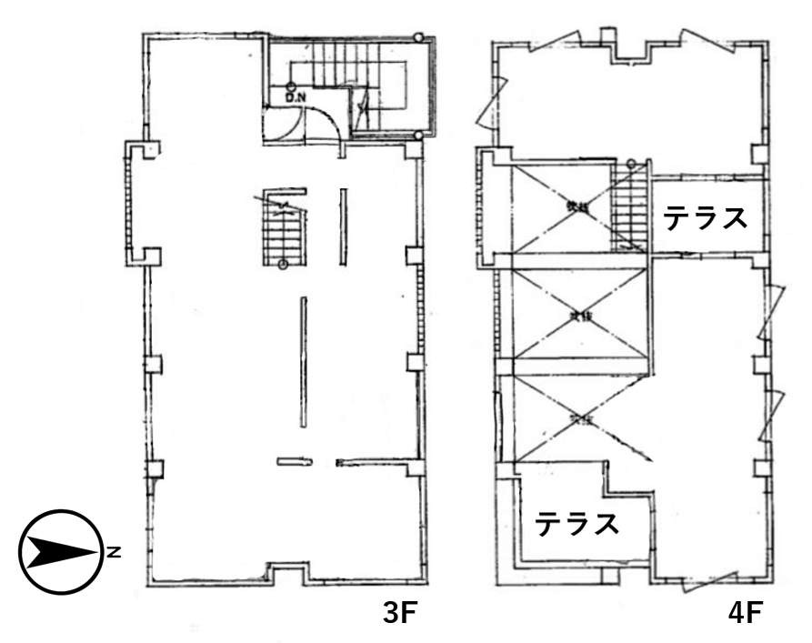
春には桜がずらっと並ぶ琵琶湖疏水沿い建つRC造4階建。その3階と4階を繋げ、思いきってスケルトンにしたすっきりとした区画が誕生しました!ちなみに1階は「み空」さん、2階には「かかん京都店」さんが営業されています。 以前は居住用に使われていましたが、現状はコンクリートの躯体があらわになったラフな状態。完成されていないからこそ空間のポテンシャルがよく伝わってきます。天井高を活かした立体的な造りで階段でゆるやかに繋がる上下のフロア。ワンフロアでは出せない空間の広がりを感じることが出来ます。 そして窓が多く設けられていてしっかりと自然光が入ってくるので、光の入り方がとても好印象です。それに加えて、積み重なったガラスブロックや階段上部のトップライトからも柔らかな光が落ちてきて全体としてとても明るい印象です。至る所から入る柔らかな光は展示や撮影に一役買ってくれそうな気がしてます。さらに、窓やバルコニーからは桜並木や大文字、きらめく疏水が眺められて抜けのある風景が日常に取り込める何とも贅沢なロケーションなのです。 募集の用途は事業用、居住用のどちらでもOK。もちろん改装は必要で比較的自由に思い描くスペースに仕上げられそうで、このラフな状態を残し必要最低限の内装で仕上げても良さそうです。イメージとしてはアトリエやギャラリー、アパレルなどの物販、撮影スタジオ、オフィスなどがマッチしそうです。いずれにしても業種を問わず、この場所ならではの世界観が創れそうな内容です。 個人的にはこの立体的なつくりを活かして制作と展示などがゆるく使い分けられると面白そうな予感。例えば下のフロアを物販やギャラリーの場としてオープンな場所に、そして上を住居やアトリエなどのプライベート用に、という感じで二層に分かれた空間を活かした利用方法も良いのではないでしょうか。 疏水沿いのやわらかな空気感、大文字や桜並木を日常の風景として取り込むことが出来る一室。完成された空間ではなくあくまでもこれから整えていく事が前提ですが、このラフさをどう活かすか、どこまで自分たちの色を乗せるかを考えるとワクワクしませんか。自分たちらしい拠点へと育てていく時間をも楽しめる方にしっくりくる物件だと思います。 |
![]() |
|
| 3階の窓からは桜並木、4階の窓からは青空が空間を彩ります。 |
|
| 南側は天井が抜かれてスカッとした空間。ラフなままでも十分サマになりそう |
|
| 見てるだけでもワクワクする立体空間。トップライトからも光が降り注いできます |
|
| ガラスブロックが集まっている箇所。柔らかな光が展示や撮影に嬉しい |
|
|
| >>大きな地図で見る  |
| 賃料 | 29万7,000円(税込) | 専有面積 | 115㎡ |
| 保証金 | 3ヶ月 | 礼金 | なし |
| 償却 | なし | 管理費 | なし |
| 所在地 | 京都市左京区北白川久保田町29-9 | ||
| 交通 |
京阪本線「出町柳」駅 徒歩20分 京都市営バス「銀閣寺道」停 徒歩1分 |
||
| 建物構造 | 鉄筋コンクリート造 4階建て | 所在階 | 3、4階 |
| 築年 | 1983年 | 取引態様 | 媒介 |
| 設備 | 電気/都市ガス/水道/駐車場(1台分・サイズ制限有) | ||
| 備考 | ペット不可/定期借家契約(期間:10年)/募集戸数:1戸/保証会社加入要(初回に月額賃料総額100%、毎年10,000円~)/賃料に1階駐車場代含む/再契約の場合、再契約料:賃料1ヶ月(税別)、再契約事務手数料:15,000円(税別)//要火災保険契約 | ||
| 情報修正日時 | 2026年4月3日 | 情報更新予定日 | 2026年4月27日 |
あなたにおすすめの物件


