|
|
|
||||||||||||||||||
団地でやんわり |
||||||||||||||||||||
|
||||||||||||||||||||
|
||||||||||||||||||||
|
||||||||||||||||||||
|
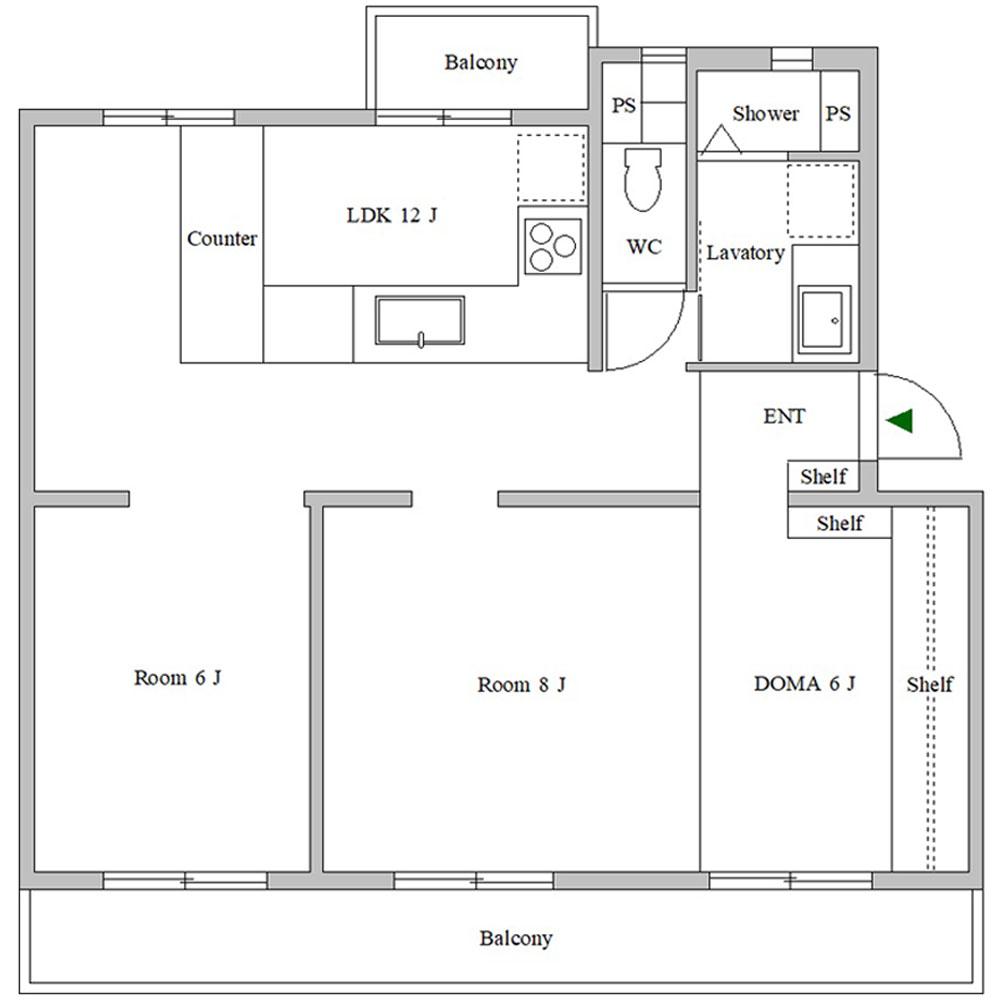
細かく間仕切られた構造壁を活かし、敢えて扉を設けずやんわりと空間分けされたリノベ済団地の1区画の登場です。 8年ほど前にリノベーションされた本物件は、元々売主さんが自宅として利用されていて、前回は賃貸での募集でしたが、今回はその後を引き継いでくれる方を募集します。 玄関からそのまま靴で行き来できるPタイルの土間部分では、自転車や趣味道具のメンテナンスを行うのには、かなり有難いスペースになってます。冒頭にもあるように、恐らく当初は4DK位に細かく区切られていたであろう内部にはサニタリー部分以外に建具が無く、ゆるっと空間分けがされているので、窮屈さは全く感じない内容です。もし空調を効かせたい等あれば、布を掛けたりして好みに合った空間づくりをお楽しみください。 そしてどこかの飲食店の様にカウンターで囲まれたキッチンの背面にも掃出し窓があるので風を通しながら気分良く料理に取り組めそう。おまけに小さなバルコニーに直接つながるので収集日迄のゴミの保管にも重宝しそうです。 場所は山科区から伏見区に入ったあたりに位置する地下鉄東西線の醍醐駅。駅から市営団地群を抜けて、その奥(山手)に建つ醍醐上ノ山団地。 注意点としては、駅から物件までの道のりは上り坂なので自然と足腰が鍛えられそうな立地です。もし駐車場を利用したい方は月額8,000円で空き区画があるそうですが、空き状況は都度変動するので必要であればお問合せ時に合わせて確認いただけると助かります。あと、本物件はシャワーブースのみで、バスタブはありませんので、湯船に浸かりたい時は近くの「湯~とぴあダイゴ」まで車を走らせる必要があります。 |
![]() |
|
| Pタイルの土間部分にラグを敷いても良さそう |
|
| 好きな本や物・洋服がたくさん陳列できる可動棚 |
|
|
| 手前に見えるのは懸垂バー(室内物干し) |
|
|
| >>大きな地図で見る  |
| 価格 | 1,480万円 | 専有面積 | 63.99㎡ |
| 管理費 | 5,000円 | 修繕積立金 | 10,000円 |
| 所在地 | 京都市伏見区醍醐上ノ山町21-3 | ||
| 交通 |
京都市営地下鉄東西線「醍醐」駅 徒歩10分 醍醐コミュニティバス「上ノ山団地口」停 徒歩1分 |
||
| 建物構造 | 鉄筋コンクリート造 4階建て | 所在階 | 2階 |
| 築年 | 1975年 | 土地権利 | 所有権 |
| 面積 | 都市計画 | 市街化区域 | |
| 用途地域 | 第一種中高層住居専用地域 | 建蔽率/容積率 | |
| その他費用 | 取引態様 | 媒介 | |
| 設備 | 電気/都市ガス/上下水道/駐車場(月額8,000円 都度空き確認要)/ | ||
| 備考 | ペット不可/地目:宅地/分譲会社:日本勤労者住宅協会/施工会社:青木建設株式会社/管理形態:自主管理/総戸数:222戸/バルコニー面積:13.58㎡/現況:空室/引渡時期:相談/敷地面積:17,536.18(共有持分1/222)/2018年8月リノベーション済み(2026年8月壁面全面再塗装、ハウスクリーニング実施済み)/売主の契約不適合責任免責/エレベーターなし/ | ||
| 情報修正日時 | 2026年4月6日 | 情報更新予定日 | 2026年4月27日 |
あなたにおすすめの物件


