|
|
|||||||||||||||||||||
旧山本邸ーこの貫禄があれば何も要らないー |
||||||||||||||||||||||
|
||||||||||||||||||||||
|
||||||||||||||||||||||
|
||||||||||||||||||||||
|
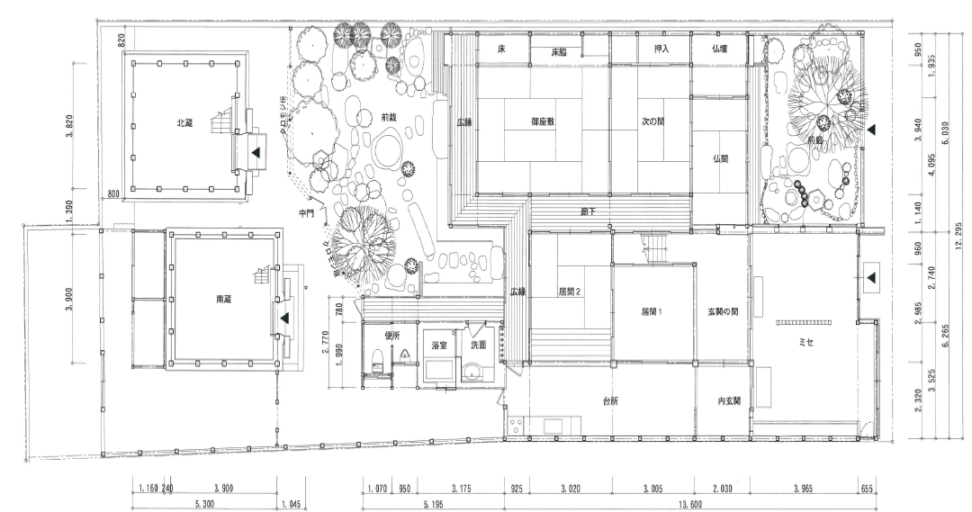
この建物の魅力を語るには、多くの言葉は必要ないことでしょう。築約180年の元呉服屋の大型町家。水回りの改修以外は大きな損傷もなく当時のまま美しくその空間が残されています。 昔ながらの街並みが残る、大宮通鞍馬口界隈。間口も大きく堂々とした松も見え、立派な面構えがひと際目立つこの建物。江戸時代から続く呉服屋の由緒ある建物で築約180年とのこと!実は文化財登録を望まれているような生い立ちがあり〼。 建物の全体を見ると、痛みも少なくとても丁寧に住まわれていたのがわかるいい状態。整備はしやすいのかなと思います。古い木造テナントの場合、柱や梁などが痛んでたり傾いていたり。そうなるとかなり大規模なテコ入れが必要となってしまいますが、この建物は目視できる限りでは大丈夫そうな印象です。大型の町家なので使われている木材もかなり大きいのかもしれませんね。間取りとしては通りに面した店の間と前庭を両軸に中央に廊下のある明快なプラン。2階への階段も廊下そばにあるため、両翼に分けていろいろなプランニングがし易そうです。 水回り側はバックヤードに徹底して、座敷側を客席にしたり。2階は洋間が多いので宿泊エリアにしたり。離れた蔵はリラクゼーション・スパエリアにしたり。一棟貸しの宿や文化体験ができる施設が丁度フィットするのではないかなと勝手に妄想しています。 注意点としては、奥庭にある2つの蔵のうち北側の蔵は貸主さんが倉庫として使用するということ。テナントとして使用できるのは南側の蔵のみとなります。また、文化財級の建物ですので、きちんと設計士を入れて改装範囲や改装の仕方など貸主さんと打ち合わせて進める必要があります。 賃料や事業内容、改装内容の詰めなど、いろいろと高いハードルはありますが、この建物の持つ貫禄が全てを後押ししてくれることでしょう。 貫禄に気圧された方は、是非。 |
![]() |
|
| 1階店の間から入り口を見る。元呉服屋の店のあとはそのままに残っています。前庭は全面ガラスで存分に楽しめるように。土間は敷き瓦で安定の風情が出ています |
|
| 1階店の間。お店空間に奥行きはあまりなく、大事なお客様は座敷に通してゆるりと接客していたのかも |
|
| 1階お座敷越しに庭を見る。全体的に間口が広くゆったりとした造り。1棟貸しの宿として改修したら存分にこの魅力を活かせそうです |
|
| 1階座敷の床の間。簡素だが贅沢に。美しい作りしてます |
|
|
| >>大きな地図で見る  |
| 賃料 | 88万円(税込) | 建物面積 | 272.56㎡ |
| 保証金 | 6ヶ月 | 礼金 | なし |
| 償却 | なし | 管理費 | なし |
| 所在地 | 京都市上京区大宮通鞍馬口上る若宮堅町92番地 | ||
| 交通 |
京都市営地下鉄烏丸線「北大路」駅 徒歩15分 京都市営地下鉄烏丸線「鞍馬口」駅 徒歩13分 |
||
| 建物構造 | 木造/瓦葺き 2階建て | 所在階 | |
| 築年 | 築年不詳 | 取引態様 | 媒介 |
| 設備 | 電気/上下水道/都市ガス/ | ||
| 備考 | ペット不可/定期借家契約(期間:10年)/募集戸数:1戸/設備等全て残置物/残置物撤去予定/庭の剪定維持管理は借主が行う/再契約料:新賃料1ヶ月、再契約事務手数料:33,000円(税込)/短期解約違約金:1年以内・賃料2ヶ月/借家人賠償付火災保険加入要/保証会社加入要/保証金返還率:解約時原状回復の上、100%返還/フリーレント相談可(最大3か月)/改装費一部オーナー負担(最大300万円)/契約開始日より1年間賃料半額/北側の蔵は貸主にて使用/改装内容は事前に要相談//庭付き/住居兼事務所可/1階・路面/要火災保険契約 | ||
| 情報修正日時 | 2025年9月18日 | 情報更新予定日 | 2025年11月16日 |
あなたにおすすめの物件


