|
|
|
||||||||||||||||||||
ラフな箱でゆるくひらく |
||||||||||||||||||||||
|
||||||||||||||||||||||
|
||||||||||||||||||||||
|
||||||||||||||||||||||
|
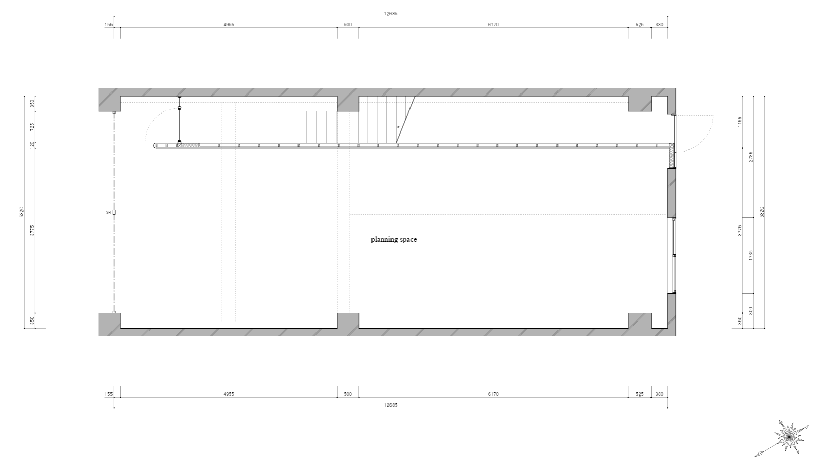
亀岡のゆったりとした空気の中、街路樹が並び歩道も広く、どことなく異国のような雰囲気が漂う一角。そんな通りに面して個人商店が並ぶ中、これから何かが始まりそうな空白がありました。 シャッターを開けると12mもの奥行きのある空間が待っています。奥側にも掃き出し窓があるので、それだけ奥行きがあるにもかかわらず全体的に明るく、心地の良い風が通り抜けていきます。 2階には設計事務所が入っていて、お隣は住居利用だそうですので、オーナーさんとしては、花屋さんや本屋さん等の静けさを伴う業態だと嬉しいとのこと。もし花屋さんだったら、観葉植物やドライフラワーがラフなコンクリートに映えそうですし、仕入れ後の搬入搬出時にも裏手に駐車すれば動線としてすごく使い易そうです。とは言え、軽飲食程度であればご相談可能ですので、普段はコーヒースタンドのように、時折マルシェのようにたくさんの人々が交流する場にしても面白いかもね。とのこと。いずれにせよ地元の方達がふらっと立ち寄りたくなる拠点になれば良いなと思ってます。 手前から奥へとズドンと繋がる形状を活かし、物販とカフェ、展示と販売といった複合的な利用方法もありかもしれません。立ち寄った人が自然と奥へと引き込まれて気が付くと滞在している。そんな流れをつくりやすそうなのもこの奥行きならでは。 近隣の人たちがゆるく集まり、他愛もない会話が生まれる。大きく外に開かずともこの場所の中で小さな賑わいを育てていくような使い方が似合いそうな気がします。ちなみに営業時間は22時までを想定しておりますので予めご了承ください。 市内から少し距離がありますが車も2台までなら駐車可能というのが嬉しいポイント。むしろ市内から距離を取った亀岡という土地だからこその穏やかさを感じることが出来ます。何を置くか、どう見せるか、どんな人が集まるかによってこの空間の表情は大きく変わりそうです。 |
![]() |
|
| 約12mと奥行きいっぱいの空間 |
|
| 壁の一面は下地まで準備された状態。あえてこのままでもいい雰囲気かも |
|
| 裏手方向(南西向)。窓の付近の明るさが心地良い。 |
|
| 正面入り口も広く、通行人がふらっと入りやすそうな印象 |
|
|
| >>大きな地図で見る  |
| 賃料 | 11万円(税込) | 専有面積 | 50㎡ |
| 敷金 | 1ヶ月 | 礼金 | 1ヶ月 |
| 償却 | なし | 管理費 | なし |
| 所在地 | 亀岡市河原町200-19 | ||
| 交通 | JR山陰本線「亀岡」駅 徒歩13分 | ||
| 建物構造 | 鉄筋コンクリート造 2階建て | 所在階 | 1階 |
| 築年 | 1983年 | 取引態様 | 媒介 |
| 設備 | 電気/プロパンガス/上下水道 | ||
| 備考 | ペット不可/定期借家契約(期間:7年/再契約:相談)/募集戸数:1戸/退去時清掃費:実費/保証会社加入要(初回に月額賃料総額100%、毎年10,000円~)/バイク置場あり/駐車場あり/1階・路面/飲食店可/要火災保険契約 | ||
| 情報修正日時 | 2026年4月6日 | 情報更新予定日 | 2026年4月27日 |
あなたにおすすめの物件


