|
|
|||||||||||||||||||||
団地のキャンバス |
||||||||||||||||||||||
|
||||||||||||||||||||||
|
||||||||||||||||||||||
|
||||||||||||||||||||||
|
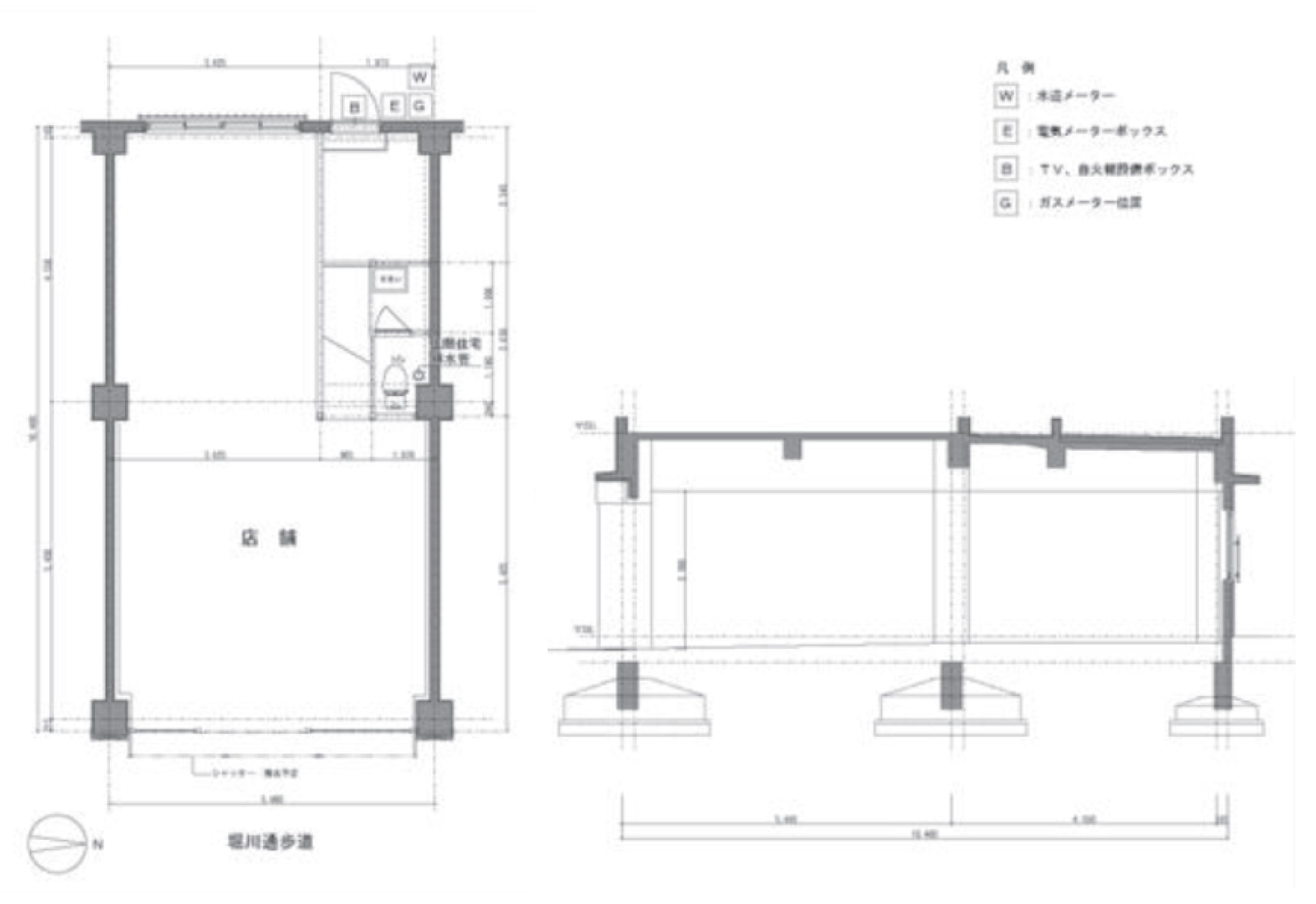
日本初のRC造店舗併用住宅として知られる「堀川団地」。その中でも、堀川通に面し、商店街の一角に空きが出ました。戦後復興の象徴として建てられたこの団地は、いま「アートと交流」をテーマに、新しい文化の拠点へと少しずつ姿を変えています。 現在はまだ以前の内装が残っていますが、入居が決まれば貸主側でスケルトンの状態まで解体し、真っさらな箱として引き渡されます。コンクリートの質感が現れるシンプルな空間は、これから何かを始める人にとってのキャンバスのような場所。通りに面したガラス面もあり、街との距離が近いのもこの場所の魅力です。ショップとして使うのはもちろん、奥をアトリエやギャラリーとして使うなど、空間の使い方を考える余白もあります。 堀川団地では、アートや文化をきっかけにした団地再生が進められています。この棟にもすでに、日用雑貨店、美容室、精肉店、リサイクルショップ、ケーキ店、ギャラリー、図書館など、暮らしに根ざした店や活動が並んでいます。そのため、同じ棟で業種が重なる出店は基本的にできません。既存のお店と並びながら、この場所に新しい視点を持ち込んでくれるような方に来てもらえたらうれしいです。 大事な点として、応募は先着ではなく、企画内容などを基に選ばれる審査制です。どんな店や活動をしたいのか、この場所でどんな風景をつくりたいのかを共有しながら進めていく形になります。また、条件を満たせば工事期間中の家賃が最大2ヶ月免除される制度もあります。とはいえ、上階には団地で暮らす住民がいるため、大きな音や振動の出る業種は難しいなどの制約もあります。団地の生活と共存しながら、長く続く店を考えていただければと思います。 場所は堀川通沿い、堀川商店街の北側。昔ながらの商店街の空気と、新しい店や活動が少しずつ混ざり始めているエリアです。通りを歩く人、団地に住む人、その両方に開かれた店がここに生まれたら、きっとまたこの街の風景が少し変わるはず。団地のキャンバスに、次はどんな色が描かれるのか。そんなことを楽しみにしています。 |
![]() |
|
| 室内から通り側を見る。ガラス越しに街の気配がそのまま入ってきます。 |
|
| 入口側から奥を見たところ。現在は以前の内装が残る状態です。 |
|
| 壁面はシンプルな下地。スケルトンにするとまた印象が変わりそうです。 |
|
| 通路の先には裏口があります。 |
|
|
| >>大きな地図で見る  |
| 賃料 | 15万5,430円(税込) | 専有面積 | 56.55㎡ |
| 敷金 | 3ヶ月 | 礼金 | なし |
| 償却 | なし | 管理費 | なし |
| 所在地 | 京都市上京区⻄堀川通上⻑者町下る奈良物町481番地 | ||
| 交通 |
京都市営地下鉄烏丸線「丸太町」駅 徒歩16分 京都市営バス「堀川下長者町」駅 徒歩1分 |
||
| 建物構造 | 鉄筋コンクリート造 3階建て | 所在階 | 1階 |
| 築年 | 1950年 | 取引態様 | 媒介 |
| 設備 | 電気/都市ガス/上下水道 | ||
| 備考 | 定期借家契約(期間:10年)/募集戸数:1戸/保証会社: 20,000円/年・ 初年のみ40,000円/堀川商店街共同組合入会時負担金として組合出資金150,000円(退去時に清算)と設備分担金350,000円が必要/堀川商店街協同組合賦課⾦として月額10,000円/1階・路面/飲食店可/要火災保険契約 | ||
| 情報修正日時 | 2026年3月21日 | 情報更新予定日 | 2026年4月27日 |
あなたにおすすめの物件


