|
|
|
||||||||||||||||||||
気晴らす見晴らし |
||||||||||||||||||||||
|
||||||||||||||||||||||
|
||||||||||||||||||||||
|
||||||||||||||||||||||
|
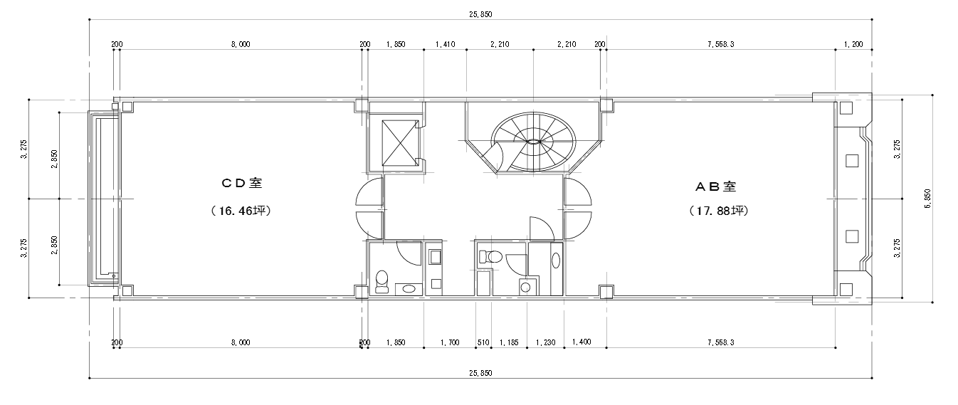
開閉できない窓やカーテンを締め切った窮屈な空間に詰め込まれて働きたくないっ!オフィスだって、いや、過ごす時間の長いオフィスだからこそもっと居心地の良さを求めるべきではないでしょうか。 今回は9階建てビルの7階と4階に位置する2区画。まずは7階の区画ですが、やはり高層階なので窓を開けるとその眺望には目を見張るものがあります。付近には景色を遮る大きな建物が無く、愛宕山をはじめとする京都西側に連なる山々がスカッと眺められ、大北山の左大文字も見えています。透明ガラスではないので外の景色を気軽に眺められないのは少し惜しいものの、窓を開けた瞬間に広がる景色はなかなか気持ちのいいものです。 バルコニーの腰壁はスリットタイプになっており、足元まで景色がしっかりと見渡せます。そのおかげで窓を開け放つとスカッと気持ちのいい景色が眺められます。仕事が一区切りついてバルコニーへ出ればきっと良い気分転換になるはず。 そして4階、正直なところ上の階みたいな抜け感はありませんが、変なクセもないのでそつなくオフィス利用にはしっかり応えてくれそうです。どちらの区画もサイズ的には6~7人規模が使いやすそうです。 最後に業種としては、来客がある業種は基本的にNGですのでオフィス利用が前提となります。エリア的にどの方面にも動きやすい場所なのでいい拠点になりそうです。また改装は内容によりけりですが相談可能です。 【各区画の募集条件】 4階AB号室(59.11㎡) ・賃料・・・169,860円(税別) ・共益費・・71,520円(税別) ・保証金・・1,019,160円(非課税) 7階CD号室(54.41㎡) ・賃料・・・156,370円(税別) ・共益費・・65,840円(税別) ・保証金・・938,220円(非課税) |
![]() |
|
| 7階|西向きの窓が設けられていてふんわりと明るい一室です |
|
| 7階|北と南はフィックス窓で開閉が出来ません。ただ正面の窓が大きい分十分に風が入ってきました |
|
| 7階|バルコニーからの景色がとても気持ちいいのです |
|
| 4階|上の階のような眺望は無くとも、開口部が大きくて圧迫感は感じません |
|
|
| >>大きな地図で見る  |
| 賃料 | 15万6,370~16万9,860円 | 専有面積 | 54.41㎡~59.11㎡ |
| 保証金 | 6ヶ月 | 礼金 | なし |
| 償却 | なし | 共益費 | 65,840円~71,520円 |
| 所在地 | 京都市中京区烏丸通竹屋町下る少将井町229-2 | ||
| 交通 | 京都市営地下鉄烏丸線「丸太町駅」 徒歩1分 | ||
| 建物構造 | 鉄筋コンクリート造 9階建て | 所在階 | 4階、7階階 |
| 築年 | 1979年 | 取引態様 | 媒介 |
| 設備 | 電気/上下水道/都市ガス/エアコン1基/共用エレベーター1基/NTT光ケーブル引込済(ご使用の際、別途お申し込みが必要です。) | ||
| 備考 | ペット不可/定期借家契約(再契約:相談)/募集戸数:2戸/退去時ハウスクリーニング代:実費/入退館:24時間可/管理形態:24時間機械警備/正面玄関開閉時間:月~金:7:30~21:00 、土:7:30~20:00 、日・祝日:常時閉/敷地内禁煙/保証会社加入要/要火災保険契約 | ||
| 情報修正日時 | 2026年4月10日 | 情報更新予定日 | 2026年4月25日 |
あなたにおすすめの物件


