|
|
|||||||||||||||||||||
平屋でゆるっと |
||||||||||||||||||||||
|
||||||||||||||||||||||
|
||||||||||||||||||||||
|
||||||||||||||||||||||
|
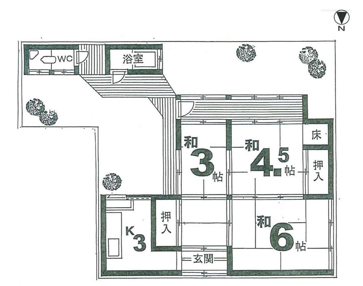
窓を開け放てば、すぅーっと風が通り抜け、縁側で太陽光を浴びながら読みかけだった本に手を付ける。余りの心地良さについつい居眠りをしてしまい気が付けば夕方。。。とこんなイメージが安易に膨らむ平屋建の登場です。 場所は堀川北大路の北東にあたる住宅地の一角で、建物が手前の共同住宅に半分隠れるように建ってます。周辺は大きめのお宅や公園、小学校のグランドがあるので通りに出ても緑が目に入り、不便なくゆるりと暮らすには絶妙の立地条件。 建物はキッチンが独立していて、あとは畳数の異なる和室が田の字型に配置されているので、襖で区分けしたり、全て取っ払って大きな一間にしてみたり、自身の生活スタイルに合わせてアレンジしてみて下さい。また内容にもよりますがDIYも相談できるとのことで、より自分好みの空間に近づける事も。。。あと適度に余白を確保しつつ全体に目が行き届く程のコンパクトさが、1人暮らしには落ち着くサイズ感かと思ってます。なので荷物の多い2人だと少し手狭に感じるかもしれません。 他に気になるとすれば、浴室とトイレが渡り廊下の先にあるので冬場は寒さが身に染みそうなのと、洗濯機置き場が外部にある点です。 庭には元々いくつかの植栽が植わっていた様ですが、現状は根元からカットした状態なので、また新芽が出てくる可能性があります。余裕があればこの辺りも整備して一部を菜園にしたり、ウッドデッキを設置したりして、ありそうで中々出てこない平屋暮らしを満喫してみては。 |
![]() |
|
| まずは座布団のご準備を |
|
| 1人なら広すぎず狭すぎずのちょうど良いサイズ感 |
|
| 縁側には陽だまり |
|
|
|
| >>大きな地図で見る  |
| 賃料 | 8万8,000円 | 専有面積 | 57.85㎡ |
| 敷金 | 160,000円 | 礼金 | なし |
| 償却 | なし | 管理費 | なし |
| 所在地 | 京都市北区紫野上柳町3 | ||
| 交通 | 地下鉄烏丸線「北大路」駅 徒歩6分 | ||
| 建物構造 | 木造 1階建て | 所在階 | |
| 築年 | 取引態様 | 媒介 | |
| 設備 | 電気/都市ガス/上下水道 | ||
| 備考 | ペット不可/定期借家契約(期間:5/再契約:相談)/築年不詳/保証会社加入要/退去時にハウスクリーニング代60,000円(税別)が必要/附属建物3.96㎡有/要火災保険契約 | ||
| 情報修正日時 | 2025年11月27日 | 情報更新予定日 | 2025年12月15日 |
あなたにおすすめの物件


