|
|
|||||||||||
自然の傍らで生まれ変わる |
||||||||||||
|
||||||||||||
|
||||||||||||
|
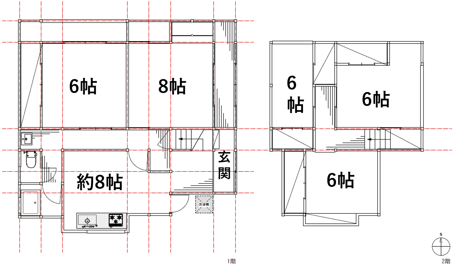
【2026年3月中旬まで改装工事予定ですが、写真は既存の物です。】 豊かな自然が身近に感じられる岩倉エリア。その中でも特に穏やかな空気感がとても良い宝ヶ池公園の近くに建つ、家族でのんびりと暮らせそうな味わい深い戸建。 まず印象としては古き良き日本家屋で、延べ床面積130㎡と広々としています。玄関先には駐車スペースとコンパクトな庭があり、徒歩1分以内に宝ヶ池公園があったり、更に間取りが3LDKなのでお子さんがいる家庭でも住みよい住環境が揃っている印象を受けました。 それでは1階のご紹介。現在の居室は8帖と6帖の和室が続き間になっています。ここは杉の無垢材を使用したフローリングに変更されてリビングになります。大きめのソファやダイニングテーブルを置いてもまだまだ余白が残るサイズ感。無垢材に変わることで足触りや空気感がガラッと変わり、より広々と過ごしやすい空間へと生まれ変わりそう。現在収納と廊下側の襖は白色に張替え中です。 1階でいうとキッチンスペースも大きく変更予定で、床にはネイビーのフロアタイルが貼られ、ラワン合板で仕上げられたシステムキッチンを導入、壁面塗装もされるので空間全体がすっきりと整った仕上がりになるかと思います。 そして2階には和室が3室あります。それぞれの部屋にゆとりがあるので主寝室、子供部屋を2室と割り振ることもできますし、小さいお子さんがいる家庭であれば一家で川の字で寝て、セカンドリビングや趣味部屋に。という感じでライフスタイルに合った使い分けが出来そうです。ちなみに各部屋の畳は表替え、襖は張り替えられます。襖の色合いは東がグレー、南が薄紫、西が水色。 他の改装箇所としては現在外にある洗濯機置き場を階段下に移動。トイレの便器を新調。玄関前の駐車スペースの一部の地面を左官工事により綺麗な状態に変更される予定です。内外ともに手が加えられ、見た目だけでなく使い勝手もきちんと向上するかと思うので乞うご期待。 もちろん改装工事が終わり次第、改めてご紹介させていただく予定ですが、改装中でも随時ご案内が可能です。是非エリアの雰囲気、生まれ変わる前の姿を現地でご覧ください。 徒歩1分で宝ヶ池公園なので自然に触れながら散歩したり、遊具がたくさん揃っています。更に玄関前に駐車可能というのもお子さんがいる家庭には嬉しい周辺環境ではないでしょうか。 |
![]() |
|
| 1階リビングの変更箇所|床:杉の無垢フローリングに貼替、右端の階段下に洗濯機置き場を新設、襖:白色に張替え |
|
| 欄間、鴨居は改装後も残す予定なので和モダンで素敵な空間に生まれ変わりそう |
|
| 奥行きがあり広々とした空間。木のぬくもりを感じるリビングになるのが楽しみです |
|
| 収納と廊下側の襖は張替の為、取り外されています。壁と天井は既存のままです。 |
|
|
| >>大きな地図で見る  |
| 賃料 | 建物面積 | 131.87㎡ | |
| 敷金 | 1ヶ月 | 礼金 | 1ヶ月 |
| 償却 | なし | 管理費 | なし |
| 所在地 | 京都市左京区上高野石田町156-3 | ||
| 交通 |
叡山電鉄「宝ヶ池」駅 徒歩6分 京都市営地下鉄烏丸線「国際会館」駅 徒歩8分 |
||
| 建物構造 | 木造/瓦葺 2階建て | 所在階 | |
| 築年 | 1983年 | 取引態様 | 媒介 |
| 設備 | 電気/都市ガス/上下水道/設備外:エアコン3基(新調) | ||
| 備考 | ペット不可/定期借家契約(期間:3年/再契約:相談)/募集戸数:1戸/室内禁煙/退去時清掃費:実費/保証会社加入要/庭付き/バイク置場あり/駐車場あり/要火災保険契約 | ||
| 情報修正日時 | 2026年2月7日 | 情報更新予定日 | 2026年3月24日 |
あなたにおすすめの物件



