|
|
|||||||||||
羨望のペントハウス |
||||||||||||
|
||||||||||||
|
||||||||||||
|
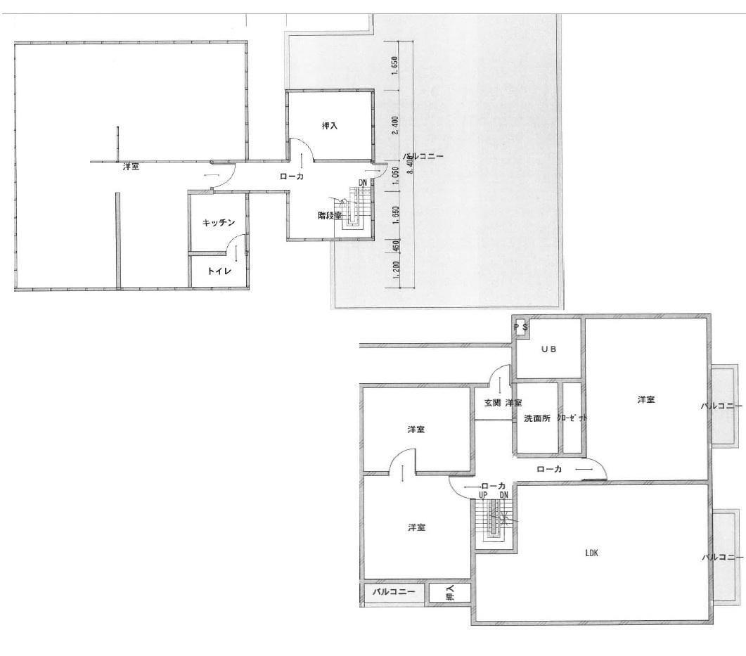
魅力的な要素がそろった物件が出てまいりました。 ルーフバルコニー・メゾネット・眺望、そして大空間。普通のマンションではつまらない、広くて癖のあるステキな空間をご紹介。 場所は今出川通を東山に向かい、百万遍を越えた辺り。京大農学部にほど近いところになります。この辺は銀閣寺に向かって緩やかに登坂となっているので、低層でも比較的良い眺めを得られるエリア。交通量のある今出川通から一筋入った落ち着いたところに建っている低層マンションの3、4階となります。 特筆すべきは専用のルーフバルコニーでしょう。共用で大きなバルコニーがあるマンションはよく見かけますが、こちらは専用。誰にも邪魔されずに好きなだけルーフバルコニーを愛でることができます。朝ヨガだってし放題。ここだけで住めるぐらい広いので、想像力を発揮して十分に楽しんでください。 4階はペントハウスのような造りとなっているので、ここのほかには大きな洋室と押入、トイレがあるのみです。4階の大きな洋室も非常に個性的。大空間ではあるのですが、あえて低い壁で区切ってあります。十字にゾーニングがなされているので、ぐるっと回った奥はベッドルームでその手前は書斎でと、レイアウトの楽しみがあります。壁面には作り付けの棚板もあるので、本棚など余計な家具も要らなさそう。想像力を思いきり発揮して、レイアウトしてみてください。 3階はLDKと水回り、個室が二つの構成。個室はそれぞれ約12畳程度の広さ。一つには部屋と同じくらいの広さのウォークインクローゼットが設けられているので、必要なものはすべてここに収まるぐらい。2人住まいだと広さを持て余しそうなレベルですね。LDKもかなりの広さです。キッチンとリビングダイニングは鉄製の造作壁で緩やかに仕切られているのでそれぞれの空間にノイズが入らず使いやすい。壁面には間接照明、そして作り付けの地袋収納があるので、生活の細かなものはすべてここへ。 キッチン向かいにも作り付けのテーブルがあるので、料理で活用してもいいし、もちろんダイニングテーブルとしても。またキッチン奥には造作家具付きのパントリーまであるので、持ち込む家具も最低限でいいのではと思えてしまう気の利いた造りをしています。 注意点としては、低層マンションなので、3階までは階段で上がる必要があること。エアコンはすべて残置物の為、壊れた場合は自身での交換が必要なこと。それにつけても空間の面白さと秀逸さが勝ってしまうステキ物件、びびっと来られた方は是非お早めに。 |
![]() |
|
| 屋上全景。南西を見れば、吉田山越しに京都市内と西山が一望できます |
|
| 4階洋室全景。バルコニー階の一番大きな部屋。真ん中に低い壁が十字に設けられているので、ただ広い空間よりはゾーニングがしやすいですね |
|
| 4階洋室入口から見る。低い壁とのコントラストが面白い。これを使いこなす楽しみがありそうです |
|
| 4階洋室奥から入り口を見る。正面の廊下のドン突きがルーフバルコニーの扉。スーッと風の抜ける良い間取り |
|
|
| >>大きな地図で見る  |
| 賃料 | 専有面積 | 158.95㎡ | |
| 敷金 | 1ヶ月 | 礼金 | なし |
| 償却 | なし | 共益費 | 4,000円 |
| 所在地 | 京都市左京区北白川西町77-3 | ||
| 交通 |
叡山電鉄叡山本線「元田中」駅 徒歩15分 京阪電鉄鴨東線「出町柳」駅 徒歩18分 |
||
| 建物構造 | 鉄筋コンクリート造 4階建て | 所在階 | 3、4階 |
| 築年 | 2004年 | 取引態様 | 媒介 |
| 設備 | 電気/上下水道/都市ガス/ガスコンロ/シャワートイレ/駐輪場/駐車場(16,500円税込/1台) | ||
| 備考 | ペット不可/募集戸数:1戸/保証会社加入必須/普通借家契約(2年、更新料無)/安心入居サポート:19,800円/2年/鍵交換代:16,500円(税込)/退去時清掃代:35,000円(税別)/1年未満での解約の場合、短期解約違約金として家賃2ヶ月が必要/退去月が3月の場合は20日までに明け渡しが必要/駐車場あり/要火災保険契約 | ||
| 情報修正日時 | 2025年10月21日 | 情報更新予定日 | 2026年2月20日 |
あなたにおすすめの物件



