|
|
|
||||||||||||||||||||
犬と猫と、この広さ |
||||||||||||||||||||||
|
||||||||||||||||||||||
|
||||||||||||||||||||||
|
||||||||||||||||||||||
|
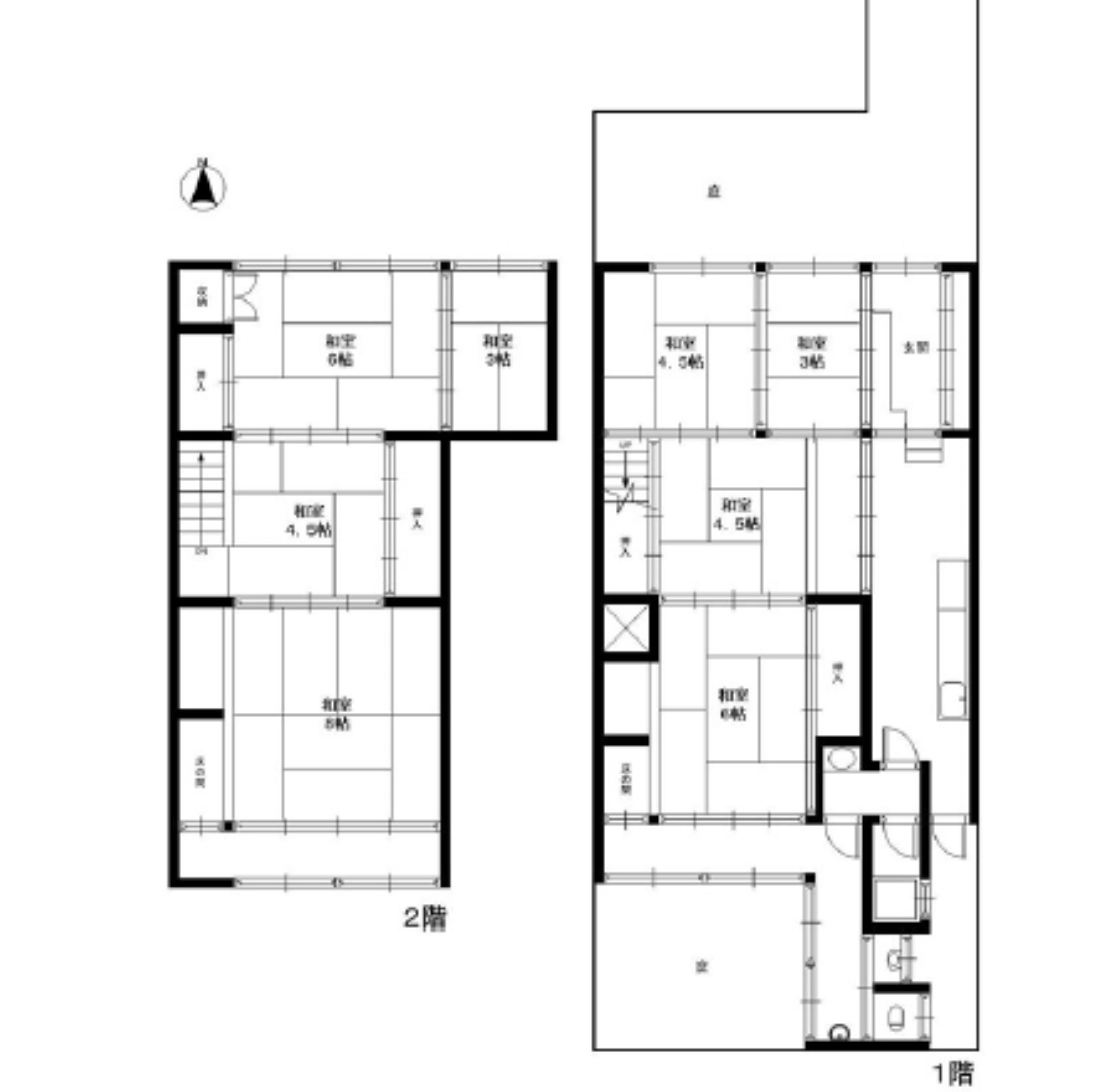
ワンちゃん、ネコちゃんともに2匹まで相談可能。そして137㎡。この時点で「おっ」と思った方、けっこういるんじゃないでしょうか。 しかもこの広さ。こういう条件、探すと意外と見つかりません。ペット飼育の場合は敷金・礼金がそれぞれ1ヶ月分アップしますが、それでも「あ、これいいな」と思える家でした。 玄関を入ると、奥へ奥へと続く和室。建具を開け放てば、ひと続きの広い空間に。逆に閉めれば、それぞれちゃんと居場所になる。この感じ、なかなか使い勝手が良さそうです。どこをリビングにするか、どこで寝るか。ちょっと迷うくらいが楽しいやつです。縁側でごろんとして、庭を眺めて、気づいたら時間が経ってる。ワンちゃんは走り回って、ネコちゃんは好きなところで丸くなる。そんな光景がすっと浮かびました。 とはいえ、全部が完璧というわけでもなくて。階段はまあまあ急ですし、お風呂もサイズは控えめ。でも、そのぶん他の空間がしっかり広い。どこを優先するか、わりと分かりやすい家かもしれません。 場所は聖護院のすぐ東側。道が変われば多くの観光客の姿を目にしますが、本物件前はその様なざわつきもなく、静かな住環境だと思います。見落としそうな白く細い通路を進んでいくと、「あれ、ここで合ってる?」と一瞬なるんですが、大丈夫です。ちゃんとその先に家はあります。 |
![]() |
|
| 1F│建具越しに、奥へ奥へとつながる和室 |
|
| 1F│あると助かる、このサイズ感の階段下の収納 |
|
| 1F│透明ガラスの扉が、少しだけ洋の気配 |
|
| 台所│火袋だった吹き抜け、冬場は寒いでしょうが窓もあり光が十分に届きます |
|
|
| >>大きな地図で見る  |
| 賃料 | 11万円 | 専有面積 | 137.18㎡ |
| 敷金 | 1ヶ月 | 礼金 | 1ヶ月 |
| 償却 | なし | 管理費 | なし |
| 所在地 | 京都市左京区聖護院中町 | ||
| 交通 | 京阪本線「神宮丸太町」駅 徒歩13分 | ||
| 建物構造 | 木造 2階建て | 所在階 | 1-2階 |
| 築年 | 築年不詳 | 取引態様 | 媒介 |
| 設備 | 電気/都市ガス/上下水道 | ||
| 備考 | ペット可(相談(猫・犬〈中型犬まで〉合計2匹まで)敷金・礼金それぞれ賃料1ヶ月分アップ)/定期借家契約(期間:3年)/募集戸数:1戸/保証会社必須( 全保連 初回のみプラン:月額賃料120% 毎年プラン:月額賃料50%・年間13,000円)/要連帯保証人/事務所使用相談可/庭付き/要火災保険契約 | ||
| 情報修正日時 | 2026年4月6日 | 情報更新予定日 | 2026年4月21日 |
あなたにおすすめの物件


